舒适温度
健康空气
水处理
心怡中丝园|过一个舒适的暖冬
安装方案:
用户情况
基本情况
随着生活水平的提高,人们对家居生活的要求也越来越高。如今,夏季制冷冬季采暖已经成为不可或缺的舒适家居系统。
在家庭采暖方面,地暖以其高舒适度占据现在南方采暖市场的主流地位。
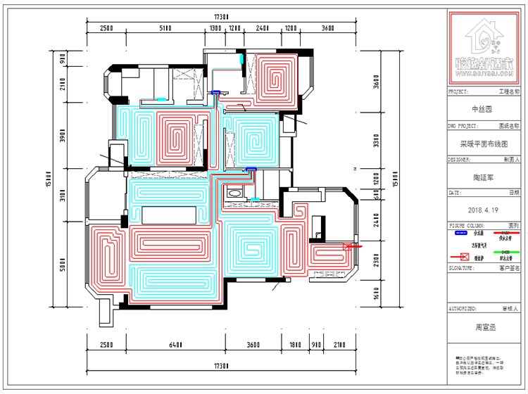
方案设计
设计说明
舒适施工
精工精匠





施工完成
施工验收
作为国内少数室内舒适家居系统集成平台,我们将各种舒适家居系统价格透明化,并集产品销售、方案设计、专业安装、售后服务为一体,您能够直接通过电脑、平板、手机等设备,在线咨询并预定舒适家居系统安装。骏逸舒适家凭借着这种线上顾问式营销和线下专业设计安装的服务,帮您省时省力省钱,为用户带去了舒适便捷的家居生活。
支持鼠标左右滑动切换图片













TOP