您好 欢迎来到骏逸舒适家
[登录]
[注册]
我的骏逸
个人中心
我的订单
我的问答
我的购物车
服务电话:
400-028-3206
成都
商品
舒适商品
工程案例
效果图展
骏逸课堂
骏逸问答
服务员工
舒适商品分类
舒适温度
中央空调
|
风管机
壁挂炉
|
地暖
系统类别
中央空调
|
风管机
|
壁挂炉
|
地暖
|
暖气片
|
水生态空调
|
FCH调温
|
推荐品牌
湿腾
|
日立
|
保利
|
伟星
|
天脉远红
|
开利
|
约克
|
沙尼卡
|
普特斯
|
特克尼克
|
纳碧安
|
威能
|
菲斯曼
|
大金
|
海信
|
健康空气
全热交换机
|
恒湿新风机
单向流新风
|
柜式新风
系统类别
全热交换机
|
恒湿新风机
|
单向流新风
|
柜式新风
|
壁挂式新风
|
空气净化器
|
推荐品牌
湿腾
|
日立
|
百朗
|
松下
|
兰舍
|
水处理
前置过滤器
|
中央净水器
中央软水机
|
末端直饮机
系统类别
前置过滤器
|
中央净水器
|
中央软水机
|
末端直饮机
|
空气能热水器
|
容积式热水器
|
直热式热水器
|
热水循环器
|
推荐品牌
德国水丽
|
滨特尔
|
德尔塔
|
舒孚特
|
智能家居
智能影音
|
监控设备
智能门锁
|
系统类别
智能影音
|
监控设备
|
智能门锁
|
推荐品牌
超人
|
鹿客
|
其它分类
设备配件
|
家用电器
安装包
|
设备耗材
系统类别
设备配件
|
家用电器
|
安装包
|
设备耗材
|
维护保养
|
装修材料
|
推荐品牌
首 页
促销活动
优惠卷
小区团购
促销活动
方案与报价
一分钟报价
免费设计
选购指南
骏逸课堂
工程案例
产品评测
效果图展
骏逸专题
骏逸问答
骏逸商城
骏逸商城
积分商城
贴心服务
服务中心
设备使用说明
售后报修
装修工具箱
关于骏逸
骏逸简介
公司新闻
优秀员工
骏逸招聘
联系我们
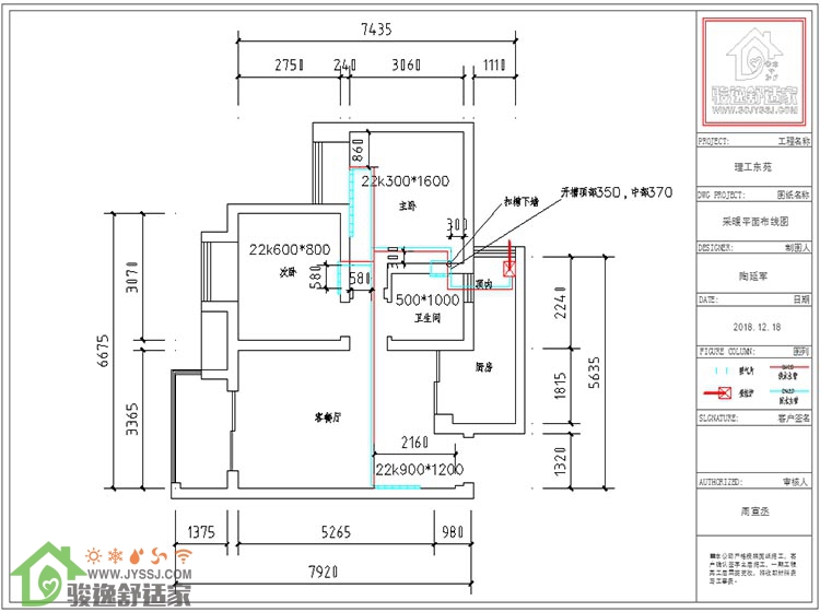
林溪康城
安装方案:中央空调
分享
648
人气
4
图片
方案设计
设计说明
点击获得您家的设计方案
舒适施工
中央空调
精工精匠
更多工程案例
龙泉吾悦华府明装暖气
龙泉新希望锦麟府明装暖气
龙泉万科.金色城品明装暖气片
龙泉保利紫薇花语风管机安装
支持鼠标左右滑动切换图片
新手指南
注册会员
如何购买
服务流程
积分说明
免费设计
在线预约
快速报价
量房设计
电话预约
服务保障
质量保障
价格保障
服务保障
售后报修
关于我们
骏逸招聘
骏逸简介
联系我们
新闻动态
400-028-3206
周一至周日 9:00-22:00
7*13小时在线客服
扫微信享最新优惠
骏逸手机版
友情链接
友链合作>
骏逸淘宝店