舒适温度
健康空气
水处理
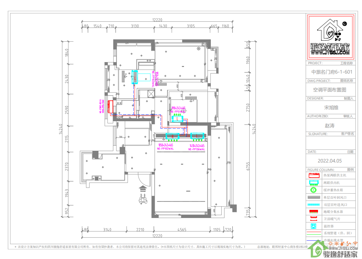
成都中旅名门府两联供水生态系统
安装方案:地暖系统/生态调温系统
舒适施工
地暖系统
地暖一期主管





地暖系统
地暖盘管














地暖系统
地暖收尾




生态调温系统
空调施工






生态调温系统
空调收尾





更多工程案例
支持鼠标左右滑动切换图片













TOP