舒适温度
健康空气
水处理
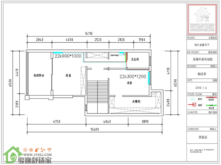
恒大金碧天下
安装方案:暖气片系统
方案设计
设计说明
舒适施工
暖气片系统
精工精匠





支持鼠标左右滑动切换图片














TOP