舒适温度
健康空气
水处理
龙湖三千庭|中央空调+地暖+地送新风=全方位舒适体验
安装方案:中央空调/地暖系统/新风系统
用户情况
基本信息
业主靳女士是一名教师,对舒适系统的品牌、参数、原理等都特别在意。认真的考察了很久后,认为骏逸舒适家不管从品牌口碑、产品质量、施工工艺和售后服务都很优秀,所以选择我们为其提供舒适系统集成服务。综合其预算考虑我们做出如下推荐:
中央空调:日立US系列 客餐厅72一拖一风管机 (带泵型)一台
地暖:壁挂炉业主自备锅炉盘管,伟星分集水器+托米雷克分室控制器
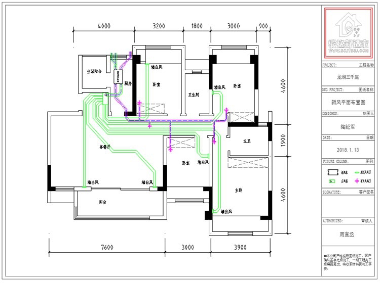
新风:兰舍ERV350H 除PM2.5全热交换器 地面送风+顶面回风
方案设计
设计说明
舒适施工
新风系统
精工精匠





支持鼠标左右滑动切换图片















TOP